| |
©
| |
| Vessel
Type: | Steam
Coaster | Location: | Co.
Down | | Date
of Loss: | 26th
July 1893 | Place: | Ballyhalbert |
| Cause
of Loss: | Collision | Boat
Dive from: | Ballyhalbert |
| Charted
Depth: | 49m | Irish
O.S. Map: | Discovery
Series No. 21 | | Height
of Wreck: | 7m
| Admiralty
Chart No: | 2156 |
| Hull
Material: | Iron
& steel | Latitude
(GPS): | 54°
26' 47.4" North | | Type
of Seabed: | Mud | Longitude
(GPS): | 05°
22' 31.8" West | | Average
Visibility: | 3
- 8m | Convert
Lat. & Long.
to - | Decimal
- CLICK
HERE | | Image
available? | Yes
- see below
| Diving
Experience: | Experienced |
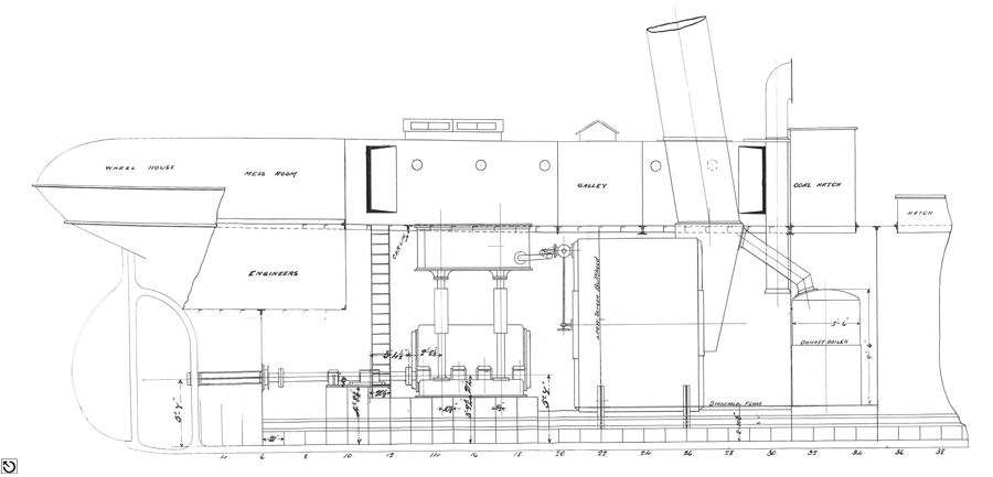
- Still in one piece and sitting
upright and flat.
- Rudder
and prop are still there and fully visible with the bow ‘dug in’ a little into
the sea bed.
- The
wreck is covered in dead mans fingers.
- The
deck is partly eroded away with the steel beam supporting structure visible.
- The
fore ‘cabin’ is has gone but the remains of the steel structure of the aft cabin
is still there.
- The
forward hold is full of mud, sloping to the starboard side, probably coal underneath.
- Deep dive for
the experienced. 42m to the deck - 49 to seabed.
- Dive
slack High Water Belfast.
|
- 515-tons
(Official No.97567), she was built and completed by Fleming & Ferguson, Paisley
as Yard No.183 in June 1893 for A. Finnie & Son, Ardrossan.
- Her
dimensions of 175ft x 26ft.8in and she was powered by a single quadruple steam
engine.
- She
was sunk in collision with the "S.S. Pearl" of Glasgow on 26
July 1893, off South Lightship, while on a voyage from Ardrossan to Dublin with
coal.
- She
was only 1 month old!
- Ships
bell was recovered in 1990.
|
©
Michael Montgomery, Castlereagh SAC


Illustrations
supplied by Michael Montgomery All
external copyrights respectfully acknowledged
| Michael
Montgomery | - | Castlereagh
SAC (2006) | | Michael
Hamilton | - | Castlereagh
SAC (1997) | | Cecil
Scott | - | North
Down SAC (1994) |
| |
Last
update - 27-Jun-2006
|
|
|